Квартира (таунхаус) Минск, Курганная 7
- 360 324 р. $120,000
Квартира (таунхаус) Минск, Курганная 7
- 360 324 р. $120,000
Адрес
Открыть на Google Картах-
Адрес: улица Курганная 7, Минск, Беларусь
-
Город: .Минск
-
Область: Минский район, .Минская обл.
-
Район: Московский
-
Страна: Беларусь
Описание
Что может быть идеальнее – квартира и дом – 2в1, да ещё и в прекрасной части г. Минска!
Квартира-таунхаус в зеленой части микрорайона Малиновка со своим участком в 7 соток! Рядом вся инфраструктура – магазины, поликлиника, остановка общественного транспорта, метро в пешей доступности. В трех минутах ходьбы парк им. Павлова – идеальное место для прогулок и проведения времени с семьей.
Дом сделан из газосиликатных блоков, крыша из металлочерепицы. Введено электричество, рядом с участком все коммуникации – газ, вода и центральная канализация. Внутренняя часть дома под отделку – отличный вариант для тех, кто любит делать всё на свой вкус, никаких лишних переделок не надо. Так же есть возможность расширить жилое пространство – сделать комнату в мансардном этаже.
Участок ровный, прямоугольной формы, есть возможность для организации места для отдыха, а так же для любителей садоводства – сделать тепличку и небольшой огород. Прекрасный вариант для семьи с детьми – своё безопасное пространство для игр во дворе.
В доме никто не прописан, все документы готовы для быстрой сделки.
Этот таунхаус – эксклюзивное предложение на рынке недвижимости, не упустите построить дом мечты!
Реализация в рамках проведения торгов! Опубликованная Цена не является офертой. Рассмотрим Ваше условия покупки.
Звоните, записывайтесь на просмотр.
Подробности
-
Цена 360 324 р. $120,000
-
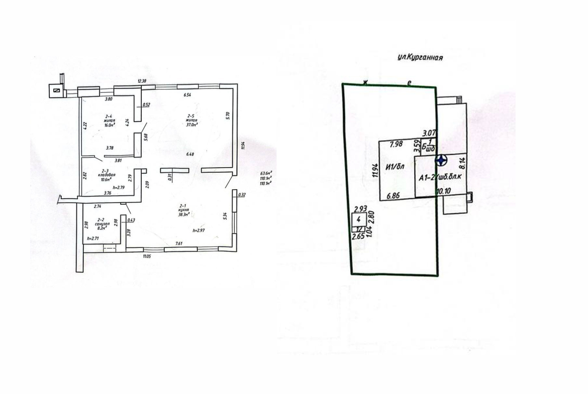
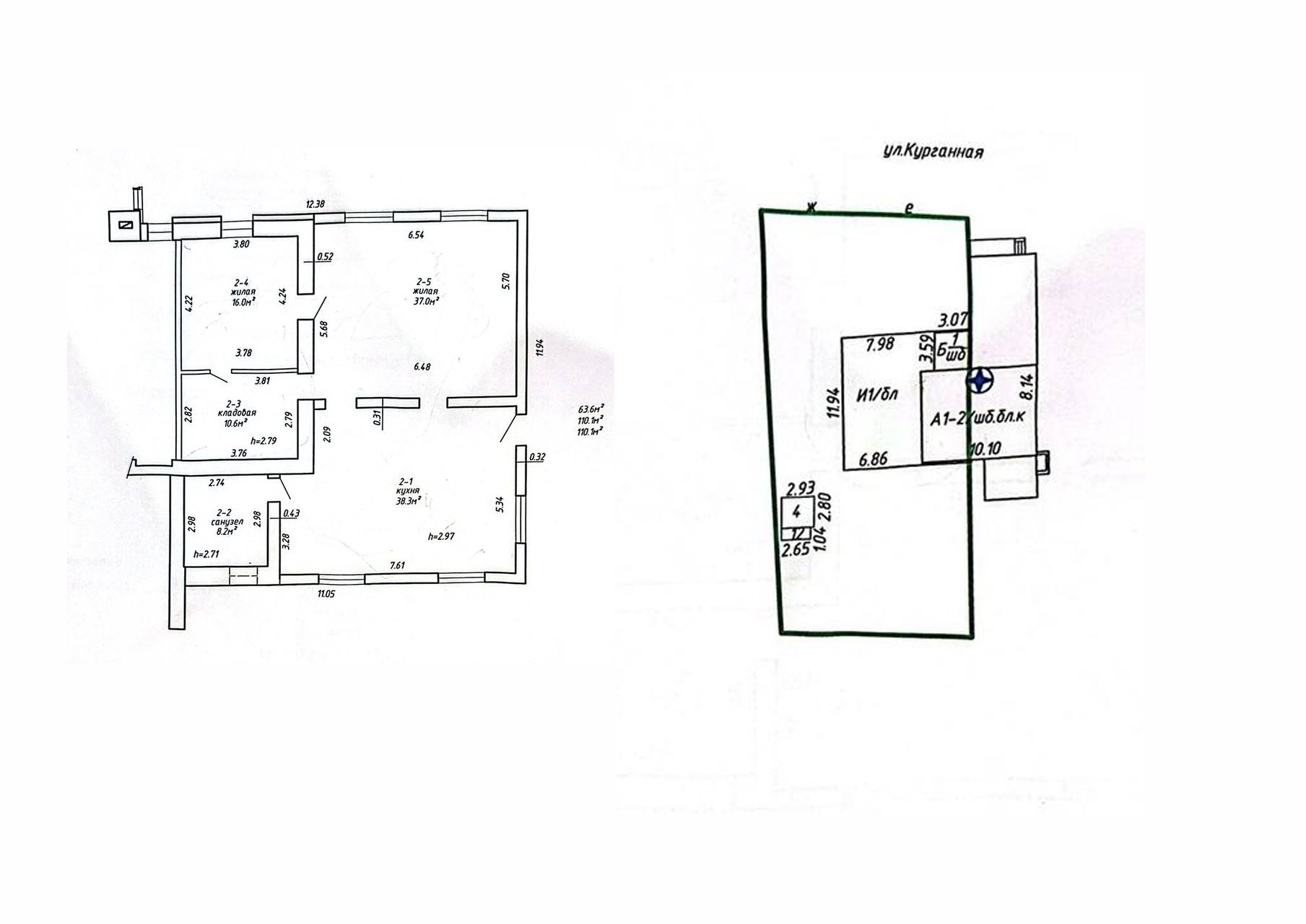
Общая Площадь 110,1 m²
-
Площадь зем. участка 0,0665 m²
-
Ванная 1
-
Год постройки 2021
-
Тип Объекта Земельный участок, Квартира
-
Жилая площадь 63,6
-
Кухня площадь 38,3
-
Этаж / Этажность 1
Дополнительные сведения
-
ИЗВЕЩЕНИЕ О ПРОВЕДЕНИИ ТОРГОВ Опубликовано в газете "Рэспублика" от 27.09.2025
-
Форма проведения Открытый конкурс
-
Предмет торгов Право на заключения договора купли-продажи
-
Наименование объекта торгов Квартира с инвентарным номером 500/D-196562
-
Сведения об объекте Площадь (кв.м): 110,1
-
Дата и время проведения торгов 27.10.2025 в 9:00
-
Окончание приема заявок 24.10.2025 в 17:00
-
Задаток для Участия (бел.руб) 6000
-
Организационный Сбор 12000
-
Срок заключения договора купли продажи 30 рабочих дней с момента утверждения протокола торгов
-
Расчеты за объект 30 календарных дней с момента заключения договора купли продажи
-
Переход права собственности После полной оплаты имущества
-
Передача объекта В день заключения договора купли-продажи
-
Расходы по гос. рег. договора купли-продажи Оплачиваются Заказчиком и Победителем (единственным участником) в равных долях
-
Важно Участнику, не выигравшему торги, задаток возвращается в течение 5 рабочих дней после назначенной даты проведения торгов на банковский счет, указанный при регистрации.
-
Иные условия проведения торгов Лицо, выигравшее торги, определяется в соответствии с Порядком организации и проведения торгов, утвержденным приказом директора ООО «ЦентрСитиБай» от 06.04.2018г №2. К участию в торгах допускаются лица, внесшие задаток и подавшие заявку на участие в торгах, а также представившие организатору заверенную банком копию платежного поручения или соответствующую квитанцию о перечислении задатка.
Ипотечный Калькулятор
-
Первоначальный взнос
-
Сумма кредита
-
Ежемесячный платеж по ипотеке

















